Orion Cadd Solutions

ORION CADD SOLUTIONS.

ORION CADD SOLUTIONS is a trusted CAD, GIS and 3D visualization Service provider firm based in Bhubaneswar, Odisha (India) dealing with all kinds of Design & Drafting services,Geographical information and 3D rendering service for overseas development firms.At Orion Cadd Solutions, we are a leading provider of professional CAD, 3D rendering, CAFM, and GIS solutions, offering reliable outsourcing support to businesses worldwide. Based in India, we specialize in delivering high-quality design, drafting, and facility management services that help organizations improve efficiency, reduce costs, and increase productivity. With our strong focus on accuracy and timely delivery, we support clients in exterior and interior 3D rendering, 3D rendering of items, paper to CAD conversion, hand sketch to CAD, CAFM, and GIS services. Our goal is to build long-term partnerships by providing dependable solutions that add real value to every project.

Get A Query

Services

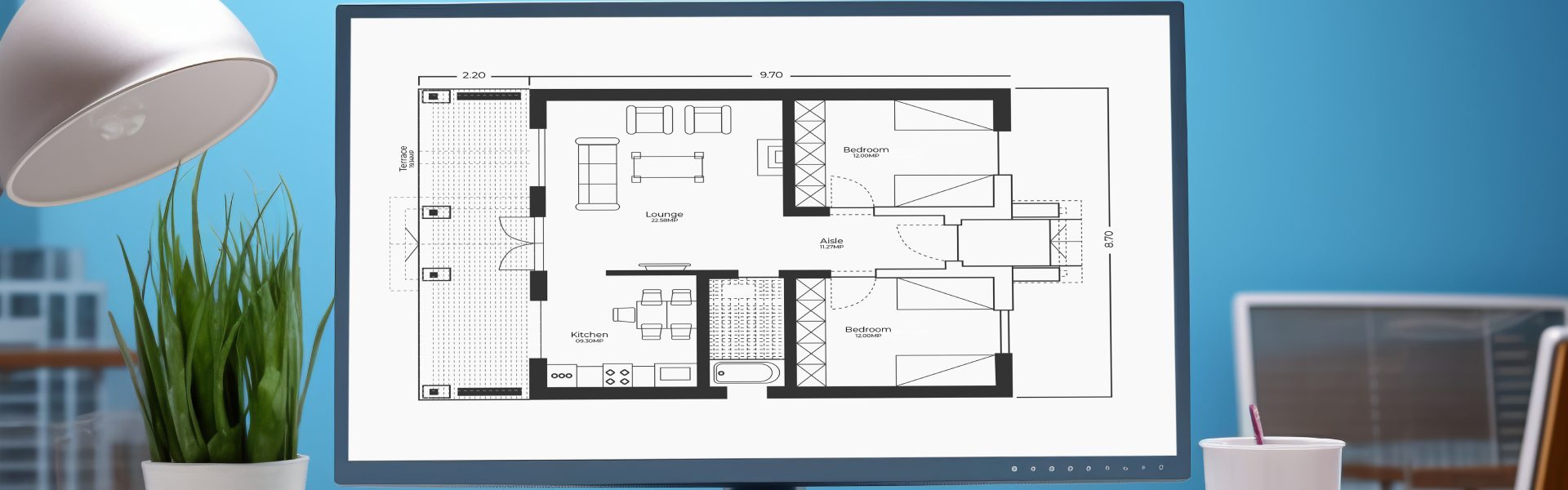
We convert hand-drawn sketches into accurate, editable CAD drawings using industry standards, helping architects, engineers, and designers improve design clarity, documentation quality, and project efficiency.

Matterport to 2D Conversion

Matterport to 2D Conversion

Orion Cadd Solutions provides professional Matterport to 2D Conversion services that help architects, designers, and real estate professionals turn immersive 3D scans into precise, easy-to-use 2D CAD drawings.

CAFM Services

CAFM Services

At Orion Cadd Solutions, we deliver professional CAFM Services in India to help organizations manage their facilities, assets, and workspaces efficiently.

Hand Sketch to CAD Conversion

Hand Sketch to CAD Conversion

Orion Cadd Solutions provides professional hand sketch to CAD conversion services in India to help businesses and professionals transform rough drawings into precise digital formats.

Paper to CAD Conversion

Paper to CAD Conversion

Orion Cadd Solutions provides reliable paper to CAD conversion services in India to help businesses transform physical drawings into accurate digital formats.

Rendering Services

Rendering Services

Rendering Services by Orion Cadd Solutions help clients visualize buildings, interiors, products, and landscapes before construction or production begins.

GIS Services

GIS Services

GIS Services by Orion Cadd Solutions help businesses and industries manage, analyze, and visualize geographical data with accuracy and efficiency.

Engineering CAD

Engineering CAD

At Orion Cadd Solutions, we provide professional Engineering CAD Services in India for engineering, construction, and architectural projects of all sizes.

Professional 3D Rendering

Professional 3D Rendering

At Orion Cadd Solutions, we provide Professional 3D Rendering in India to help architects, builders, designers, and businesses visualize their projects with clarity and confidence.

We Are Best Among Others

235+

CAD jobs Completed

13+

QUALIFIED Professional

1263+

GIS Job Completed

374+

3D Rendering Completed

100% Satisfaction Guarantee

Our services are guaranteed to give 100% satisfaction in every way.

Contact Us

Clients Feedback

I would like to thank to team for their excellent assistance. The work from team was affordable and timely, helping me to create results. I look forward to working with them again on future projects

Steven Hank

Thank you for your services your work in all aspects was very professional and very effective.

Johnson William

It was always a pleasure to work with your team –straight and forward, easy and fast. I can recommend Orion CADD Solutions.

Beau Borderline

Thank you for the quick turnaround on the drawings. The drawing looks great!! Thanks for great work

Mike